Contact
Buying or Selling your House in Western Newfoundland and Labrador
Home
Properties
Communities
Corner Brook
Deer Lake
Happy Valley-Goose Bay
Port aux Basques - Codroy Valley
St. Anthony
Stephenville
Subdivisions
Bay Crescent
Discovery Ridge
Foote Street
Miller Crescent
Shamrock Crescent
Stella's Place
Valleyview Estates
Our Team
About Us
Expert Advice
Contact Us
0
Home
Properties
8 Sebastian Drive
8 Sebastian Drive
NEW
Bonavista, Newfoundland & Labrador
$279,900
Previous
Next
Quick Summary
Location
Bonavista, Newfoundland & Labrador
Price
$279,900
Building Type
House
Property Type
Single Family
Status
For sale
Area
1150 sqft
Beds
2
Baths
2
Age
n/a
Postal Code
A0C 1B0
MLS®
1296614
Courtesy Of
EXIT Realty Aspire
Database ID:65729 DDF Feed ID: 29659675 Latitude: 48.668022 Longitude: -53.105088
Property Description
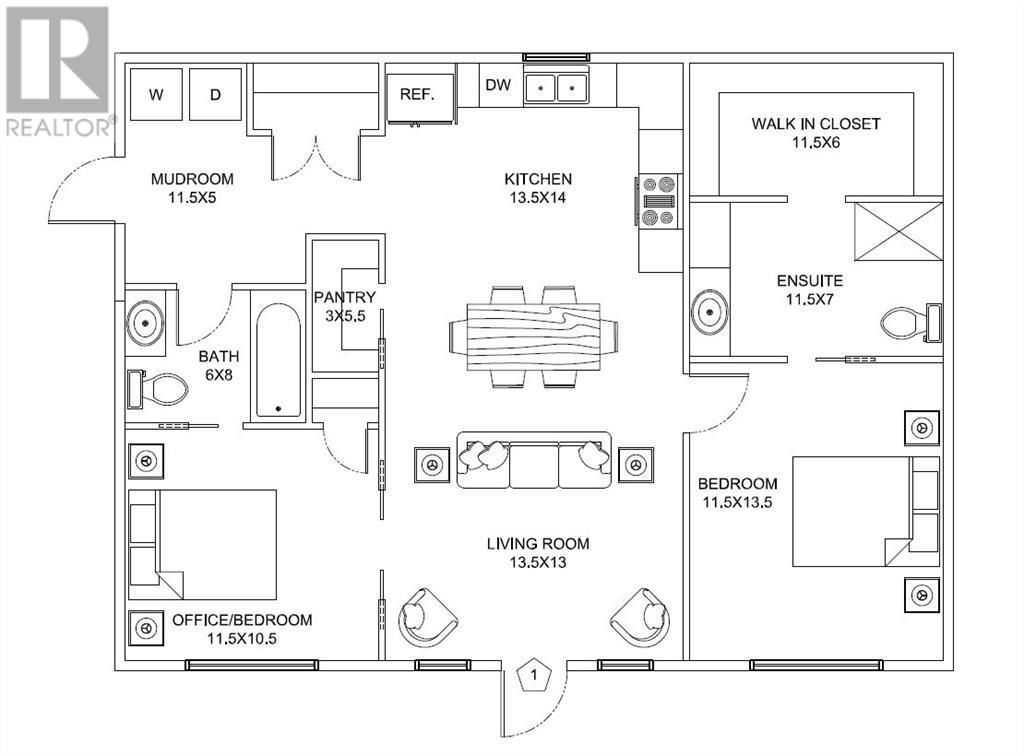
Welcome to your BRAND NEW coastal home in beautiful, historic Bonavista—where stunning ocean views and modern design come together effortlessly. This bright, open-concept two-bedroom home is designed for easy living and everyday comfort. The primary suite is a standout, featuring its own private ensuite, a spacious walk-in closet with custom cabinetry, and convenient washer-dryer hookups right where you need them. The second bedroom also offers great flexibility, with a jack-and-jill ensuite that connects to both the bedroom and the mudroom—perfect for guests or coming in after a day by the water. Throughout the home, you’ll find high-quality, custom-made cabinetry in the kitchen, bathrooms, and primary walk-in closet, adding both style and function. The kitchen, flows seamlessly into the living space, creating a bright and welcoming area to relax or entertain while taking in those beautiful ocean views. Kitchen also has a convenient pantry wth butcher block shelf. Water proof Vinyl Plank flooring flows through the entire space. This property offers a 10-year Atlantic Home Warranty. Set just minutes from Bonavista’s shops, trails, and rugged coastline, this home is ideal as a full-time residence, vacation getaway, or investment property. A fresh, modern new build in one of Newfoundland’s most charming coastal communities—this one is worth a look. (id:47053)
Contact An Agent
Your Name
*
Email
*
Phone
I prefer to be contacted via
email
phone
text
I would like more information about 8 Sebastian Drive, Bonavista, listed for $279,900.
Comments or Questions
Building Information
Building Type: House
2 Beds
2 Baths
Area: 1150 sqft
Baseboard heaters
Electric Heat
Air exchanger
Vinyl siding
Flooring: Other
Poured Concrete foundation
1 story
Municipal water
Full Details
General
MLS® Number:
1296614
Equipment Type:
None
Location Description:
Corner of Cape Shore Road and Sebastian Drive
Ownership Type:
Freehold
Price:
$279,900
Property Type:
Single Family
Rental Equipment Type
None
Transaction Type:
For Sale
View Type:
Ocean view
Zoning Description:
Mixed
More Information Link:
https://www.realtor.ca/real-estate/29659675/8-sebastian-drive-bonavista
Land
Size Total Text:
.25 Acre|under 1/2 acre
Access Type:
Year-round access
Amenities:
Highway, Recreation, Shopping
Landscape Features:
Not landscaped
Sewer:
Municipal sewage system
Size Irregular:
.25 Acre
Building
Bathroom Total:
2
Bedrooms Above Ground:
2
Bedrooms Below Ground:
0
Bedrooms Total:
2
Architectural Style:
Bungalow
Constructed Date:
2025
Cooling Type:
Air exchanger
Exterior Finish:
Vinyl siding
Flooring Type:
Other
Foundation Type:
Poured Concrete
Half Bath Total:
0
Heating Fuel:
Electric
Heating Type:
Baseboard heaters
Stories Total:
1
Size Interior:
1150 sqft
Type:
House
Utility Water:
Municipal water
Rooms
Level
Type
Dimensions
Main level
Other
11.5 x 6
Main level
Ensuite
11.5 x 7
Main level
Primary Bedroom
11.5 x 13.5
Main level
Ensuite
6 x 8
Main level
Bedroom
11.5 x 10.5
Main level
Not known
3 x 5.5
Main level
Living room
13.5 x 13
Main level
Eat in kitchen
13.5 x 14
Main level
Mud room
11.5 x 5
Listing information last updated on 2026-04-27 11:32:41 -0230
Search Properties
Region
Corner Brook
Deer Lake
Happy Valley-Goose Bay
Northern Peninsula
Pasadena
Port aux Basques
Stephenville
Property Type
Agriculture
Business
Industrial
Multi-family
Office
Other
Recreational
Retail
Single Family
Vacant Land
Transaction Type
For Lease
For Rent
For Sale
Beds
1+
2+
3+
4+
5+
Baths
1+
2+
3+
4+
5+
Min $
$0
$25,000
$50,000
$75,000
$100,000
$125,000
$150,000
$175,000
$200,000
$225,000
$250,000
$275,000
$300,000
$325,000
$350,000
$375,000
$400,000
$425,000
$450,000
$475,000
$500,000
$600,000
$700,000
$800,000
$900,000
$1,000,000
$1,100,000
$1,200,000
$1,300,000
$1,400,000
$1,500,000
$1,600,000
$1,700,000
$1,800,000
$1,900,000
$2,000,000
$2,500,000
$3,000,000
$4,000,000
$5,000,000
$7,500,000
$10,000,000
Max $
$0
$25,000
$50,000
$75,000
$100,000
$125,000
$150,000
$175,000
$200,000
$225,000
$250,000
$275,000
$300,000
$325,000
$350,000
$375,000
$400,000
$425,000
$450,000
$475,000
$500,000
$600,000
$700,000
$800,000
$900,000
$1,000,000
$1,100,000
$1,200,000
$1,300,000
$1,400,000
$1,500,000
$1,600,000
$1,700,000
$1,800,000
$1,900,000
$2,000,000
$2,500,000
$3,000,000
$4,000,000
$5,000,000
$7,500,000
$10,000,000
Sort By
Lowest Price First
Highest Price First
Date Added
Include Sold / Pending Sale
Mortgage Calculator
Mortgage Amount
$
Downpayment
$
Interest Rate
%
Amortization Period
Years
Payment Frequency
Bi-monthly
Monthly
Semi-monthly
Bi-weekly
Weekly
This calculator is for demonstration purposes only.
Our Tools
Contact Us
Real Estate Alert
Calculation Tools
Complementary Professionals
Online Evaluation
Useful Links
Exclusive Listings
View Exclusive Listings