Contact
Buying or Selling your House in Western Newfoundland and Labrador
Home
Properties
Communities
Corner Brook
Deer Lake
Happy Valley-Goose Bay
Port aux Basques - Codroy Valley
St. Anthony
Stephenville
Subdivisions
Bay Crescent
Discovery Ridge
Foote Street
Miller Crescent
Shamrock Crescent
Stella's Place
Valleyview Estates
Our Team
About Us
Expert Advice
Contact Us
0
Home
Properties
377 Pickersgill Boulevard
377 Pickersgill Boulevard
Centreville, Newfoundland & Labrador
$199,000
Previous
Next
Quick Summary
Location
Centreville, Newfoundland & Labrador
Price
$199,000
Building Type
Other
Property Type
Retail
Status
For sale
Area
4908 sqft
Beds
n/a
Baths
n/a
Age
n/a
Postal Code
A0G 4P0
MLS®
1285817
Courtesy Of
EXIT Realty Aspire
Database ID:55058 DDF Feed ID: 28401778 Latitude: 49.011246 Longitude: -53.892193
Property Description
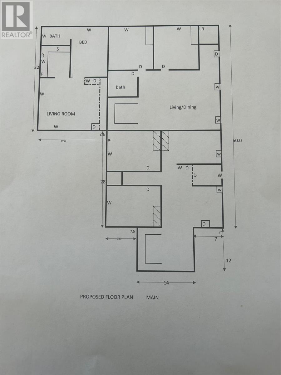
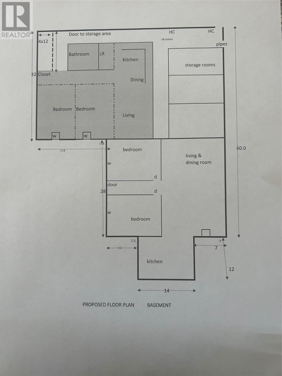
For sale: a nightclub that caters to events such as birthday parties, family gatherings, anniversaries and some weddings in the picturesque town of Centerville. This well-cared-for property is available at an affordable price. If you are considering a move to Newfoundland, this could be a great business opportunity for you. Or if you are from Newfoundland and looking for a business opportunity this business could also be for you. With a newly constructed two-bedroom apartment on the lower level you have living accommodations as well as a business. There is a set of drawings to accommodate five (4 +1) apartments if a buyer would prefer to convert the building into apartments. The building has had many upgrades in the last five years including metal roof, two heat pumps, new furnace & oil tank, new lighting, 3 bathrooms redone, some electrical upgrades, new carpet, new tables & chairs, 2-bedroom apartment constructed, etc etc. This could be the opportunity that you have been looking for. (id:47053)
Contact An Agent
Your Name
*
Email
*
Phone
I prefer to be contacted via
email
phone
text
I would like more information about 377 Pickersgill Boulevard, Centreville, listed for $199,000.
Comments or Questions
Building Information
Building Type: Other
Area: 4908 sqft
Heat Pump
Oil, Geo Thermal Heat
Flooring: Laminate, Carpeted, Mixed Flooring, Other
2 stories
Sundeck
Full Details
General
MLS® Number:
1285817
Equipment Type:
None
Ownership Type:
Freehold
Price:
$199,000
Property Type:
Retail
Rental Equipment Type
None
Structure:
Sundeck
Transaction Type:
For Sale
Zoning Description:
Com/Res
More Information Link:
https://www.realtor.ca/real-estate/28401778/377-pickersgill-boulevard-centreville
Land
Size Total Text:
100 X 150 X100 X 138|under 1/2 acre
Access Type:
Year-round access
Amenities:
Shopping
Size Irregular:
100 X 150 X100 X 138
Building
Building Amenities:
Balconies, Living Accommodation
Constructed Date:
1975
Flooring Type:
Laminate, Carpeted, Mixed Flooring, Other
Heating Fuel:
Oil, Geo Thermal
Heating Type:
Heat Pump
Stories Total:
2
Size Interior:
4908 sqft
Type:
Other
Listing information last updated on 2025-06-02 15:32:41 -0230
Search Properties
Region
Corner Brook
Deer Lake
Happy Valley-Goose Bay
Northern Peninsula
Pasadena
Port aux Basques
Stephenville
Property Type
Agriculture
Business
Industrial
Multi-family
Office
Other
Recreational
Retail
Single Family
Vacant Land
Transaction Type
For Lease
For Rent
For Sale
Beds
1+
2+
3+
4+
5+
Baths
1+
2+
3+
4+
5+
Min $
$0
$25,000
$50,000
$75,000
$100,000
$125,000
$150,000
$175,000
$200,000
$225,000
$250,000
$275,000
$300,000
$325,000
$350,000
$375,000
$400,000
$425,000
$450,000
$475,000
$500,000
$600,000
$700,000
$800,000
$900,000
$1,000,000
$1,100,000
$1,200,000
$1,300,000
$1,400,000
$1,500,000
$1,600,000
$1,700,000
$1,800,000
$1,900,000
$2,000,000
$2,500,000
$3,000,000
$4,000,000
$5,000,000
$7,500,000
$10,000,000
Max $
$0
$25,000
$50,000
$75,000
$100,000
$125,000
$150,000
$175,000
$200,000
$225,000
$250,000
$275,000
$300,000
$325,000
$350,000
$375,000
$400,000
$425,000
$450,000
$475,000
$500,000
$600,000
$700,000
$800,000
$900,000
$1,000,000
$1,100,000
$1,200,000
$1,300,000
$1,400,000
$1,500,000
$1,600,000
$1,700,000
$1,800,000
$1,900,000
$2,000,000
$2,500,000
$3,000,000
$4,000,000
$5,000,000
$7,500,000
$10,000,000
Sort By
Lowest Price First
Highest Price First
Date Added
Include Sold / Pending Sale
Mortgage Calculator
Mortgage Amount
$
Downpayment
$
Interest Rate
%
Amortization Period
Years
Payment Frequency
Bi-monthly
Monthly
Semi-monthly
Bi-weekly
Weekly
This calculator is for demonstration purposes only.
Our Tools
Contact Us
Real Estate Alert
Calculation Tools
Complementary Professionals
Online Evaluation
Useful Links
Exclusive Listings
View Exclusive Listings