Contact
Buying or Selling your House in Western Newfoundland and Labrador
Home
Properties
Communities
Corner Brook
Deer Lake
Happy Valley-Goose Bay
Port aux Basques - Codroy Valley
St. Anthony
Stephenville
Subdivisions
Bay Crescent
Discovery Ridge
Foote Street
Miller Crescent
Shamrock Crescent
Stella's Place
Valleyview Estates
Our Team
About Us
Expert Advice
Contact Us
0
Home
Properties
1328 Topsail Road
1328 Topsail Road
NEW
Paradise, Newfoundland & Labrador
$15 / sqft / mo.
Previous
Next
Quick Summary
Location
Paradise, Newfoundland & Labrador
Price
$15 / sqft / mo.
Building Type
Offices
Property Type
Office
Status
For lease
Area
3015 sqft
Beds
n/a
Baths
n/a
Age
n/a
Postal Code
A1L 1P2
MLS®
1294139
Courtesy Of
Royal LePage Property Consultants Limited
Database ID:63460 DDF Feed ID: 29311478 Latitude: 47.535645 Longitude: -52.842707
Property Description
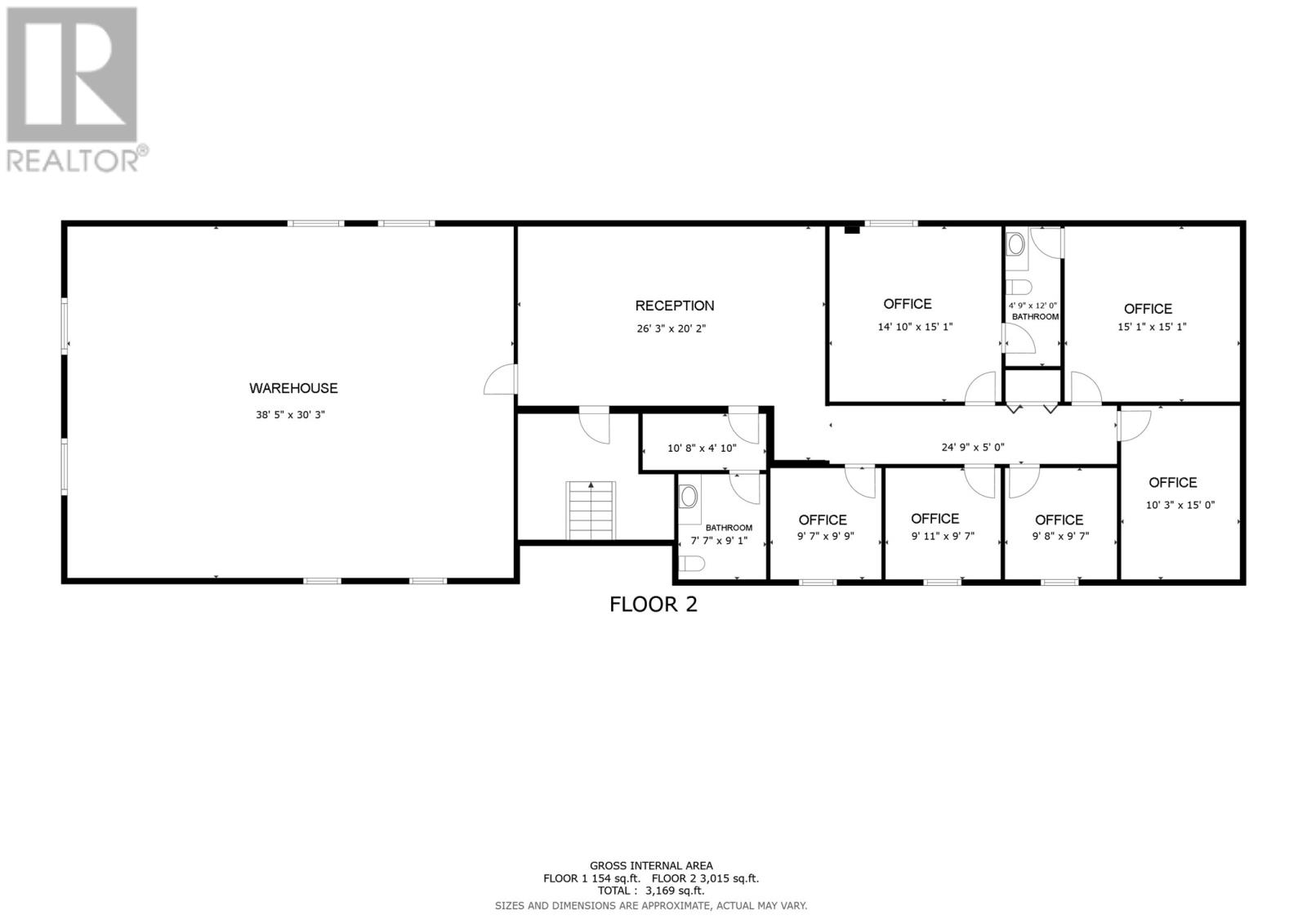
Commercial Space for Lease – 1328 Topsail Road Prime opportunity to lease versatile commercial space in a high-traffic, well established commercial area of Topsail Road. This second-floor property features multiple private offices, a common bathroom, and a large open concept area suitable for a wide range of uses including professional offices, studios, training facilities, or light warehouse/storage space. The owner is open to modifying room configurations to suit tenant requirements, offering excellent flexibility to customize the space for your business. With strong visibility, convenient access, and adaptable interior options, this location is ideal for both growing and established businesses seeking a presence in a busy commercial corridor. This two-level commercial property features a large warehouse component complemented by a professional office and reception layout on the second floor. The space is ideal for businesses requiring storage, operations, and administrative offices under one roof. Approximate Building Size: Floor 2: 3,015 sq. ft. Second Floor Layout Highlights: Large warehouse area (approx. 38'5"" x 30'3"") Spacious reception area (approx. 26'3"" x 20'2"") Multiple private offices of varying sizes Washrooms and internal corridors Functional flow between office and warehouse spaces Lease Rates: Office Space: $15.00 per sq. ft. Additional Operating Fee: $3.65 per sq. ft. Warehouse can be rented separate from the offices if needed. Can also be adjusted to be wheelchair accessible if needed. Contact for further details or to arrange a viewing. (id:47053)
Contact An Agent
Your Name
*
Email
*
Phone
I prefer to be contacted via
email
phone
text
I would like more information about 1328 Topsail Road, Paradise, listed for $15 / sqft / mo..
Comments or Questions
Building Information
Building Type: Offices
Area: 3015 sqft
Electric Heat
Flooring: Laminate, Mixed Flooring, Wood
1 story
Full Details
General
MLS® Number:
1294139
Equipment Type:
None
Lease:
15.00
Lease Per Time:
Monthly
Lease Per Unit:
square feet
Ownership Type:
Freehold
Property Type:
Office
Rental Equipment Type
None
Storage Type:
Storage
Transaction Type:
For Lease
Zoning Description:
Commercial
More Information Link:
https://www.realtor.ca/real-estate/29311478/1328-topsail-road-paradise
Land
Size Total Text:
4,051 - 7,250 sqft
Access Type:
Year-round access
Amenities:
Highway, Shopping
Landscape Features:
Not landscaped
Building
Building Amenities:
Air Conditioning
Flooring Type:
Laminate, Mixed Flooring, Wood
Heating Fuel:
Electric
Stories Total:
1
Size Interior:
3015 sqft
Type:
Offices
Listing information last updated on 2026-02-02 09:52:43 -0330
Search Properties
Region
Corner Brook
Deer Lake
Happy Valley-Goose Bay
Northern Peninsula
Pasadena
Port aux Basques
Stephenville
Property Type
Agriculture
Business
Industrial
Multi-family
Office
Other
Recreational
Retail
Single Family
Vacant Land
Transaction Type
For Lease
For Rent
For Sale
Beds
1+
2+
3+
4+
5+
Baths
1+
2+
3+
4+
5+
Min $
$0
$25,000
$50,000
$75,000
$100,000
$125,000
$150,000
$175,000
$200,000
$225,000
$250,000
$275,000
$300,000
$325,000
$350,000
$375,000
$400,000
$425,000
$450,000
$475,000
$500,000
$600,000
$700,000
$800,000
$900,000
$1,000,000
$1,100,000
$1,200,000
$1,300,000
$1,400,000
$1,500,000
$1,600,000
$1,700,000
$1,800,000
$1,900,000
$2,000,000
$2,500,000
$3,000,000
$4,000,000
$5,000,000
$7,500,000
$10,000,000
Max $
$0
$25,000
$50,000
$75,000
$100,000
$125,000
$150,000
$175,000
$200,000
$225,000
$250,000
$275,000
$300,000
$325,000
$350,000
$375,000
$400,000
$425,000
$450,000
$475,000
$500,000
$600,000
$700,000
$800,000
$900,000
$1,000,000
$1,100,000
$1,200,000
$1,300,000
$1,400,000
$1,500,000
$1,600,000
$1,700,000
$1,800,000
$1,900,000
$2,000,000
$2,500,000
$3,000,000
$4,000,000
$5,000,000
$7,500,000
$10,000,000
Sort By
Lowest Price First
Highest Price First
Date Added
Include Sold / Pending Sale
Mortgage Calculator
Mortgage Amount
$
Downpayment
$
Interest Rate
%
Amortization Period
Years
Payment Frequency
Bi-monthly
Monthly
Semi-monthly
Bi-weekly
Weekly
This calculator is for demonstration purposes only.
Our Tools
Contact Us
Real Estate Alert
Calculation Tools
Complementary Professionals
Online Evaluation
Useful Links
Exclusive Listings
View Exclusive Listings