Contact
Buying or Selling your House in Western Newfoundland and Labrador
Home
Properties
Communities
Corner Brook
Deer Lake
Happy Valley-Goose Bay
Port aux Basques - Codroy Valley
St. Anthony
Stephenville
Subdivisions
Bay Crescent
Discovery Ridge
Foote Street
Miller Crescent
Shamrock Crescent
Stella's Place
Valleyview Estates
Our Team
About Us
Expert Advice
Contact Us
0
Home
Properties
151 Crosbie Road Unit#101
151 Crosbie Road Unit#101
St. John's, Newfoundland & Labrador
$18 / sqft / mo.
Previous
Next
Quick Summary
Location
St. John's, Newfoundland & Labrador
Price
$18 / sqft / mo.
Building Type
Special Purpose
Property Type
Office
Status
For lease
Area
5325 sqft
Beds
n/a
Baths
n/a
Age
n/a
Postal Code
A1B 4B4
MLS®
1287827
Courtesy Of
Royal LePage Property Consultants Limited
Database ID:62627 DDF Feed ID: 28619639 Latitude: 47.561142 Longitude: -52.745277
Property Description
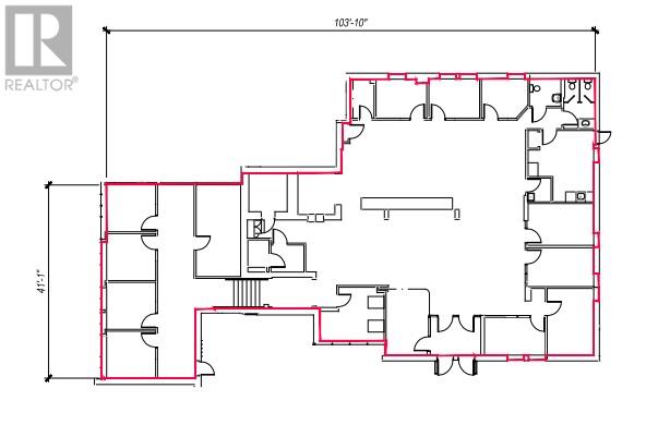
151 Crosbie Rd is a centrally located, high exposure building with tons of recent upgrades (all new HVAC units, all new windows and doors, new exterior facade, and new roof)! On the corner of Freshwater & Crosbie Rd, this building offers quick and convenient access to commercial districts and transportation links including downtown, Kenmount Rd, Columbus Dr, Kelsey Dr, and the Outer Ring Rd/Trans Canada Highway. This high exposure retail/storefront unit will be available for lease as of Oct 1, 2025. Zoned Commercial Highway, the property allows for a number of commercial uses! Suite 101 has a current layout that includes exterior offices, large windows, in-suite washroom facilities, and kitchen. Listed at $18/sqft Net + Operating Costs! Contact listing agent for additional details. (id:47053)
Contact An Agent
Your Name
*
Email
*
Phone
I prefer to be contacted via
email
phone
text
I would like more information about 151 Crosbie Road Unit#101, St. John's, listed for $18 / sqft / mo..
Comments or Questions
Building Information
Building Type: Special Purpose
Area: 5325 sqft
Heat Pump
Electric Heat
Air exchanger
Full Details
General
MLS® Number:
1287827
Lease:
18.00
Lease Per Time:
Monthly
Lease Per Unit:
square feet
Ownership Type:
Freehold
Property Type:
Office
Transaction Type:
For Lease
Zoning Description:
COH
More Information Link:
https://www.realtor.ca/real-estate/28619639/151-crosbie-road-unit101-st-johns
Land
Size Total Text:
4,051 - 7,250 sqft
Building
Cooling Type:
Air exchanger
Heating Fuel:
Electric
Heating Type:
Heat Pump
Size Interior:
5325 sqft
Type:
Special Purpose
Listing information last updated on 2026-01-05 14:24:30 -0330
Search Properties
Region
Corner Brook
Deer Lake
Happy Valley-Goose Bay
Northern Peninsula
Pasadena
Port aux Basques
Stephenville
Property Type
Agriculture
Business
Industrial
Multi-family
Office
Other
Recreational
Retail
Single Family
Vacant Land
Transaction Type
For Lease
For Rent
For Sale
Beds
1+
2+
3+
4+
5+
Baths
1+
2+
3+
4+
5+
Min $
$0
$25,000
$50,000
$75,000
$100,000
$125,000
$150,000
$175,000
$200,000
$225,000
$250,000
$275,000
$300,000
$325,000
$350,000
$375,000
$400,000
$425,000
$450,000
$475,000
$500,000
$600,000
$700,000
$800,000
$900,000
$1,000,000
$1,100,000
$1,200,000
$1,300,000
$1,400,000
$1,500,000
$1,600,000
$1,700,000
$1,800,000
$1,900,000
$2,000,000
$2,500,000
$3,000,000
$4,000,000
$5,000,000
$7,500,000
$10,000,000
Max $
$0
$25,000
$50,000
$75,000
$100,000
$125,000
$150,000
$175,000
$200,000
$225,000
$250,000
$275,000
$300,000
$325,000
$350,000
$375,000
$400,000
$425,000
$450,000
$475,000
$500,000
$600,000
$700,000
$800,000
$900,000
$1,000,000
$1,100,000
$1,200,000
$1,300,000
$1,400,000
$1,500,000
$1,600,000
$1,700,000
$1,800,000
$1,900,000
$2,000,000
$2,500,000
$3,000,000
$4,000,000
$5,000,000
$7,500,000
$10,000,000
Sort By
Lowest Price First
Highest Price First
Date Added
Include Sold / Pending Sale
Mortgage Calculator
Mortgage Amount
$
Downpayment
$
Interest Rate
%
Amortization Period
Years
Payment Frequency
Bi-monthly
Monthly
Semi-monthly
Bi-weekly
Weekly
This calculator is for demonstration purposes only.
Our Tools
Contact Us
Real Estate Alert
Calculation Tools
Complementary Professionals
Online Evaluation
Useful Links
Exclusive Listings
View Exclusive Listings